
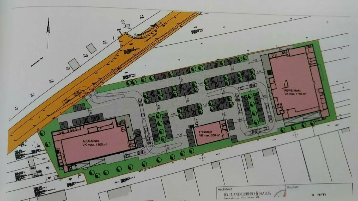
Einkaufen in Luckau: So soll der neue Nahversorgungsstandort mit Rewe und Aldi aussehen
Die Planer geben erste Einblicke zum neuen Nahversorgungsstandort in Luckau. Es handelt sich dabei aber noch um einen Entwurf. Wie soll die Verkehrsführung aussehen? Was ist im Bereich Lärmschutz vorgesehen?

Entwurfsplanung zum neuen Nahversorgungszentrum Lübbener Straße in Luckau erstellt vom Bauplanungsbüro Skalda
Siebrecht Julia